| توافر الحالة: | |
|---|---|
| الكمية: | |
18-سعة الركاب
تنقل بشكل مريح ما يصل إلى 18 فردًا في رحلة واحدة، وهي مثالية لحركة الطاقم الفعالة تحت الأرض.
مكونات دولية متميزة
تم تصميمه باستخدام أجزاء موثوقة عالميًا وعالية الجودة لتحقيق موثوقية فائقة وعمر خدمة طويل.
هيكل مفصلي مركزي + نظام توجيه هيدروليكي كامل
مرونة استثنائية ونصف قطر دوران ضيق، مما يجعلها مثالية للتنقل في أنفاق المناجم الضيقة والمعقدة.
نظام مكابح عالي الأمان
مكابح رطبة متعددة الأقراص مغلقة بالكامل مع تصميم SAHR (الإصدار الهيدروليكي التطبيقي الزنبركي) المقاوم للفشل لتوفير قوة إيقاف يمكن الاعتماد عليها.
محرك قوي ومنخفض الانبعاثات
يفي محرك الديزل Cummins المزود بشاحن توربيني بمعايير الانبعاثات الصينية للمرحلة الرابعة - وهو أداء قوي مع تأثير منخفض على البيئة.
مقصورة معتمدة من FOPS/ROPS
يوفر الهيكل الواقي القوي أقصى قدر من الأمان للسائق والركاب.
شاشة ذكية متعددة الوظائف
مراقبة حالة السيارة في الوقت الحقيقي مع دعم تشخيصي مدمج لاستكشاف الأخطاء وإصلاحها بسرعة.
نظام هيكل سريع التركيب عالمي
مركبة واحدة وإمكانيات لا حصر لها - تدعم التبديل السريع بين نقل الأفراد والبضائع والصيانة والمرفقات المتخصصة الأخرى.
تغيير سريع للمرفق خلال 5 دقائق
يسمح نظام التغيير السريع الرائد في الصناعة بتبديل الأداة/المرفقات بالكامل خلال 5 دقائق فقط، مما يقلل من وقت التوقف عن العمل.
| الفئة | المواصفات |
|---|---|
| الأداء | سعة الناقل: 18 شخصا سعة الحمولة: 1,800 كجم الوزن التشغيلي: 12800 كجم ماكس. قوة الجر: 110 كيلو نيوتن |
| السرعة (المستوى، الحمولة الكاملة) | الترس الأول: 5 ±1 كم/ساعة السرعة الثانية: 12 ±1 كم/ساعة السرعة الثالثة: 24 ±1 كم/ساعة |
| نظام الطاقة | المحرك: الكمون B5.9CS4 EFI، مبرد بالماء، المستوى 4 / المرحلة الأوروبية IV 129 كيلو واط عند 2200 دورة في الدقيقة، عزم الدوران: 760 كيلو نيوتن عند 1600 دورة في الدقيقة نظام العادم: جهاز تنقية وكاتم صوت حفاز DOC سعة إعادة تعبئة خزان الوقود: 140 لتر التحكم في ناقل الحركة الكهربائي |
| النظام الهيدروليكي | توجيه هيدروليكي بالكامل صمام الشحن وصمام فرامل الخدمة: MICO تراكم الكبح: ليمين خزان الزيت الهيدروليكي: 200 لتر (مع فلتر إرجاع الزيت) صحر المحور الخلفي ثابت، المحور الأمامي يتأرجح بمقدار ±7 درجات حجم الإطار: 12.00 – 20 PR20 |
| المقصورة | شهادة FOPS/ROPS تكييف الهواء البارد بابين نظام الوصول إلى الاتصال ثلاثي النقاط مقعد تعليق منخفض التردد كاميرا احتياطية للمركبة القيادة إلى الأمام مقصورة ذات مقعدين ممسحة الزجاج الأمامي خارج المقصورة |
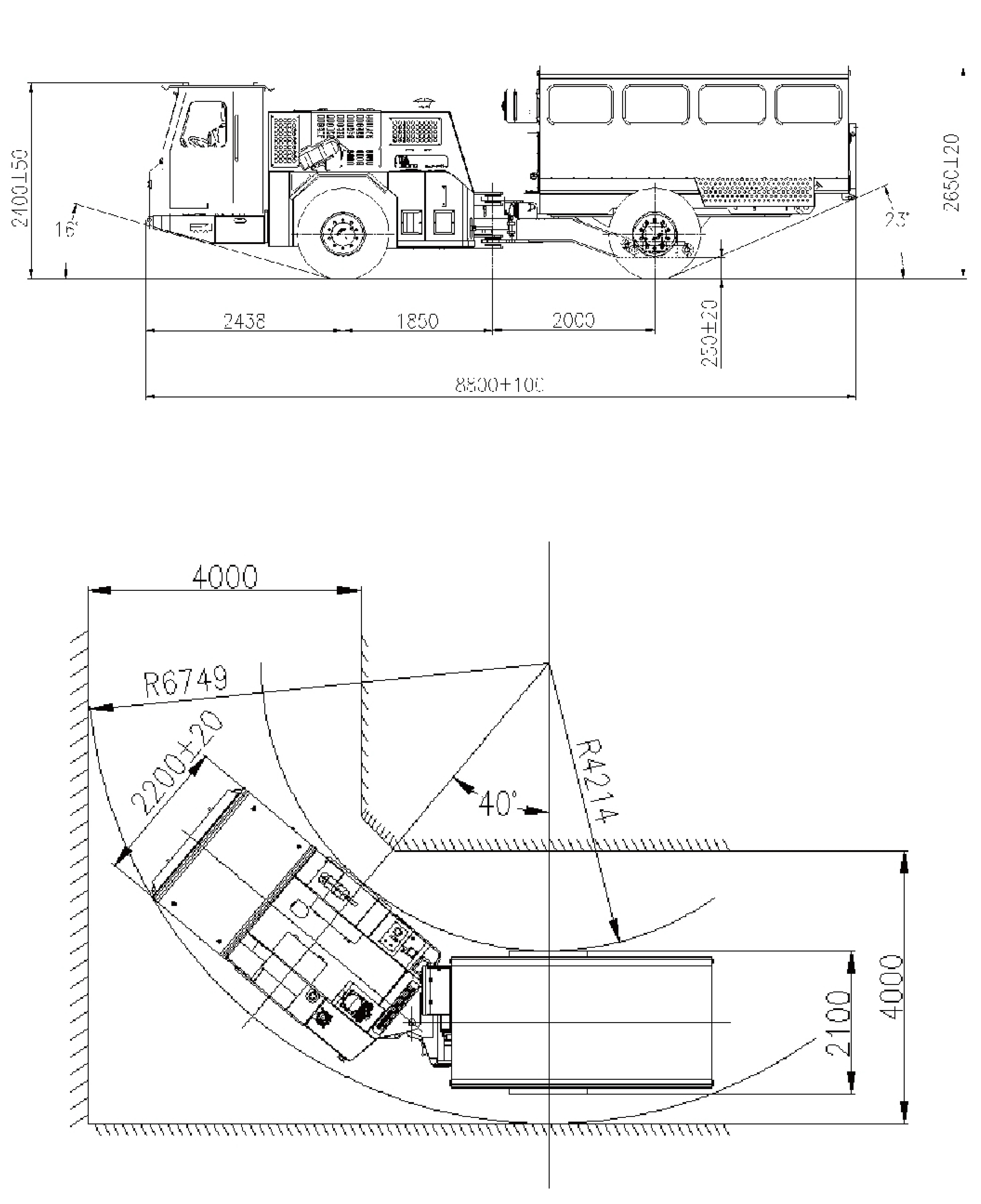
| Dimensions | الطول: 8,800 ±100 م العرض: 2,200 ±20 ملم الارتفاع: 2,650 ±20 ملم الخلوص الأرضي: 250 ±20 ملم زاوية التوجيه: ±40 درجة نصف قطر الدوران الداخلي: 4,214 ±100 ملم نصف قطر الدوران الخارجي: 6,749 ±100 ملم |
| النظام الكهربائي | مرحل كهربائي وقاطع كهربائي: شنايدر المراقب المالي: فنلندا EPEC كشف اعطال المحرك البطارية: 2*12 فولت الجمل |
| السلامة | زر التوقف في حالات الطوارئ في مقصورة الأفراد منارة وامضة محمولة للوقاية من الحرائق 1*6 كجم |
| الخيارات / الملحقات | مقصورة مغلقة تتسع لـ 16 شخصًا مع سخان الهواء بالوقود مقصورة مغلقة تتسع لـ 16 شخصًا مع تكييف الهواء نظام الاتصال بين المقصورة ومقصورة الأفراد نظام الحماية من الحرائق التلقائي |


18-سعة الركاب
تنقل بشكل مريح ما يصل إلى 18 فردًا في رحلة واحدة، وهي مثالية لحركة الطاقم الفعالة تحت الأرض.
مكونات دولية متميزة
تم تصميمه باستخدام أجزاء موثوقة عالميًا وعالية الجودة لتحقيق موثوقية فائقة وعمر خدمة طويل.
هيكل مفصلي مركزي + نظام توجيه هيدروليكي كامل
مرونة استثنائية ونصف قطر دوران ضيق، مما يجعلها مثالية للتنقل في أنفاق المناجم الضيقة والمعقدة.
نظام مكابح عالي الأمان
مكابح رطبة متعددة الأقراص مغلقة بالكامل مع تصميم SAHR (الإصدار الهيدروليكي التطبيقي الزنبركي) المقاوم للفشل لتوفير قوة إيقاف يمكن الاعتماد عليها.
محرك قوي ومنخفض الانبعاثات
يفي محرك الديزل Cummins المزود بشاحن توربيني بمعايير الانبعاثات الصينية للمرحلة الرابعة - وهو أداء قوي مع تأثير منخفض على البيئة.
مقصورة معتمدة من FOPS/ROPS
يوفر الهيكل الواقي القوي أقصى قدر من الأمان للسائق والركاب.
شاشة ذكية متعددة الوظائف
مراقبة حالة السيارة في الوقت الحقيقي مع دعم تشخيصي مدمج لاستكشاف الأخطاء وإصلاحها بسرعة.
نظام هيكل سريع التركيب عالمي
مركبة واحدة وإمكانيات لا حصر لها - تدعم التبديل السريع بين نقل الأفراد والبضائع والصيانة والمرفقات المتخصصة الأخرى.
تغيير سريع للمرفق خلال 5 دقائق
يسمح نظام التغيير السريع الرائد في الصناعة بتبديل الأداة/المرفقات بالكامل خلال 5 دقائق فقط، مما يقلل من وقت التوقف عن العمل.
| الفئة | المواصفات |
|---|---|
| الأداء | سعة الناقل: 18 شخصا سعة الحمولة: 1,800 كجم الوزن التشغيلي: 12800 كجم ماكس. قوة الجر: 110 كيلو نيوتن |
| السرعة (المستوى، الحمولة الكاملة) | الترس الأول: 5 ±1 كم/ساعة السرعة الثانية: 12 ±1 كم/ساعة السرعة الثالثة: 24 ±1 كم/ساعة |
| نظام الطاقة | المحرك: الكمون B5.9CS4 EFI، مبرد بالماء، المستوى 4 / المرحلة الأوروبية IV 129 كيلو واط عند 2200 دورة في الدقيقة، عزم الدوران: 760 كيلو نيوتن عند 1600 دورة في الدقيقة نظام العادم: جهاز تنقية وكاتم صوت حفاز DOC سعة إعادة تعبئة خزان الوقود: 140 لتر التحكم في ناقل الحركة الكهربائي |
| النظام الهيدروليكي | توجيه هيدروليكي بالكامل صمام الشحن وصمام فرامل الخدمة: MICO تراكم الكبح: ليمين خزان الزيت الهيدروليكي: 200 لتر (مع فلتر إرجاع الزيت) صحر المحور الخلفي ثابت، المحور الأمامي يتأرجح بمقدار ±7 درجات حجم الإطار: 12.00 – 20 PR20 |
| المقصورة | شهادة FOPS/ROPS تكييف الهواء البارد بابين نظام الوصول إلى الاتصال ثلاثي النقاط مقعد تعليق منخفض التردد كاميرا احتياطية للمركبة القيادة إلى الأمام مقصورة ذات مقعدين ممسحة الزجاج الأمامي خارج المقصورة |
| Dimensions | الطول: 8,800 ±100 م العرض: 2,200 ±20 ملم الارتفاع: 2,650 ±20 ملم الخلوص الأرضي: 250 ±20 ملم زاوية التوجيه: ±40 درجة نصف قطر الدوران الداخلي: 4,214 ±100 ملم نصف قطر الدوران الخارجي: 6,749 ±100 ملم |
| النظام الكهربائي | مرحل كهربائي وقاطع كهربائي: شنايدر المراقب المالي: فنلندا EPEC كشف اعطال المحرك البطارية: 2*12 فولت الجمل |
| السلامة | زر التوقف في حالات الطوارئ في مقصورة الأفراد منارة وامضة محمولة للوقاية من الحرائق 1*6 كجم |
| الخيارات / الملحقات | مقصورة مغلقة تتسع لـ 16 شخصًا مع سخان الهواء بالوقود مقصورة مغلقة تتسع لـ 16 شخصًا مع تكييف الهواء نظام الاتصال بين المقصورة ومقصورة الأفراد نظام الحماية من الحرائق التلقائي |


تقع شركة FAMBITION في منطقة التنمية الاقتصادية Laixi في مدينة Qingdao، وهي شركة معروفة ومتخصصة في تصنيع معدات التعدين غير المسارية.
حقوق الطبع والنشر © 2024 QINGDAO FAMBITION HEAVY MACHINERY CO.,LTD. جميع الحقوق محفوظة. | Sitemap | سياسة الخصوصية