| توافر الحالة: | |
|---|---|
| الكمية: | |
FUD05
FAMBITION
نوع المركبة: مركبة نقل ديزل غير مطروقة
سعة الخزان: 5000 لتر
المحرك: محرك ديزل Cummins منخفض الانبعاثات بشاحن توربيني، متوافق مع معايير الانبعاثات الصينية IV
تصميم الهيكل: هيكل مفصلي مركزي لتعزيز القدرة على المناورة والقدرة على الطرق الوعرة
نظام التوجيه: توجيه هيدروليكي كامل للتعامل السلس والسريع الاستجابة
نظام الكبح: مكابح رطبة متعددة الأقراص مغلقة بالكامل مع تصميم SAHR (الإصدار الزنبركي/الإصدار الهيدروليكي).
سلامة الكابينة: كابينة معتمدة من FOPS/ROPS للحماية من الأجسام المتساقطة ومخاطر الانقلاب
العرض والمراقبة: شاشة متعددة الوظائف لمراقبة المعدات في الوقت الحقيقي ودعم استكشاف الأخطاء وإصلاحها
نظام الإرفاق السريع: هيكل عالمي سريع التركيب يتيح تغيير الأدوات والمرفقات بسرعة
كفاءة استبدال الأداة: أقل من 5 دقائق لتبادل الأدوات
دعم متعدد الوظائف: متوافق مع مجموعة متنوعة من الملحقات الوظيفية لعمليات متنوعة
| الفئة | المواصفات |
|---|---|
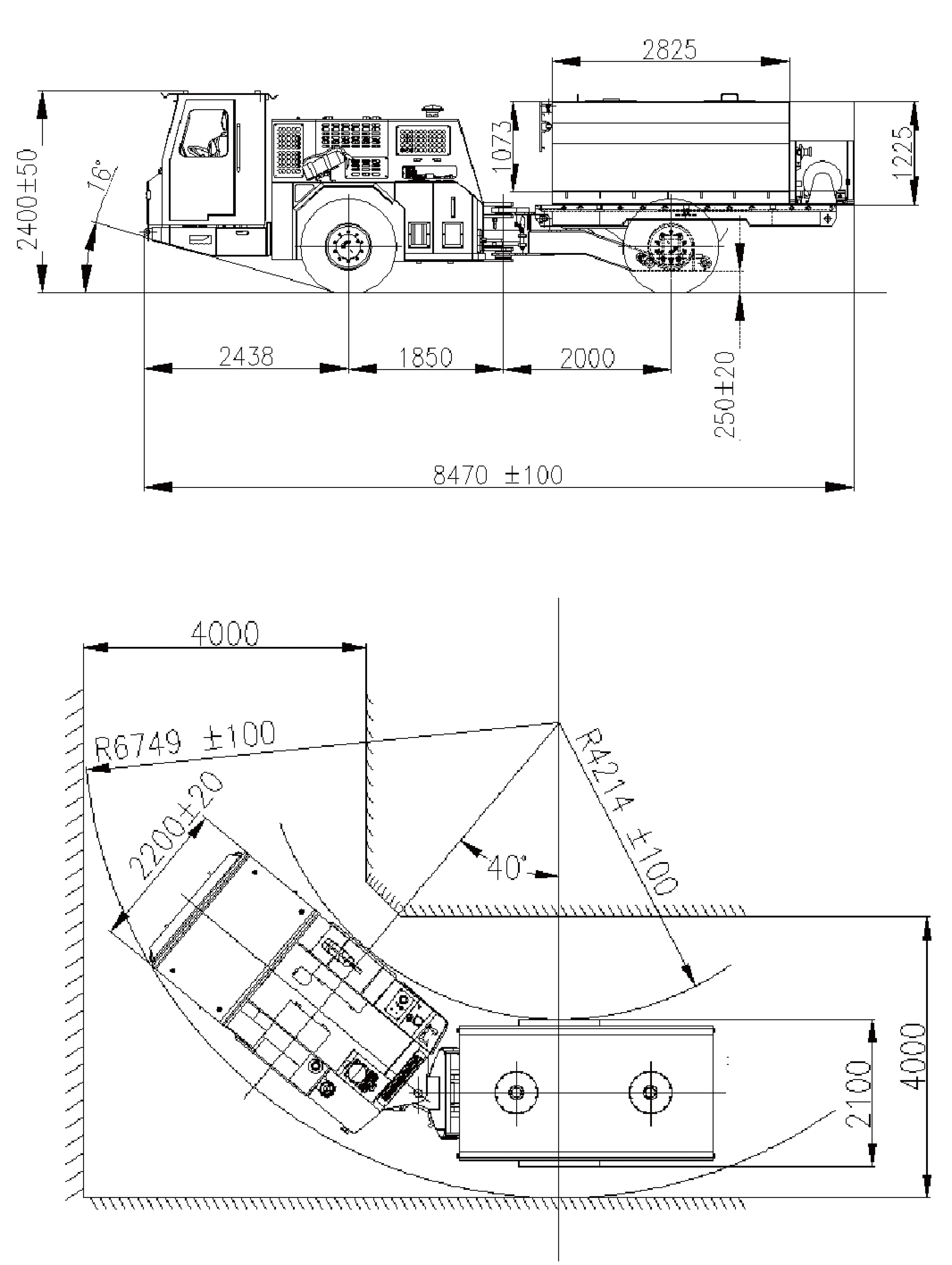
| الأداء | حجم الخزان المقدر: 5,000 لتر سعة الحمولة: 4000 كجم الوزن التشغيلي: 12800 كجم معدل تدفق الزيت المعبأ إلى الخزان: 300 لتر/دقيقة معدل تدفق الزيت إلى الجهاز: 90 لتر/دقيقة بكرة خرطوم زيت تلسكوبي: 5 م |
| تحول الشعاع | زاوية التوجيه: ±40 درجة نصف قطر الدوران الداخلي: 4,214 ±100 ملم نصف قطر الدوران الخارجي: 6,749 ±100 ملم |
| السرعة (المستوى، حمولة كاملة) | الترس الأول: 5.0 ±1 كم/ساعة السرعة الثانية: 12 ±1 كم/ساعة السرعة الثالثة: 24 ±1 كم/ساعة |
| نظام الطاقة | المحرك: الكمون B5.9CS4 EFI، مبرد بالماء، المستوى 4 / المرحلة الأوروبية IV 129 كيلو واط عند 2200 دورة في الدقيقة، عزم الدوران: 760 كيلو نيوتن عند 1600 دورة في الدقيقة نظام العادم: جهاز تنقية وكاتم صوت حفاز DOC سعة إعادة تعبئة خزان الوقود: 140 لتر نظام الفرامل SAHR المحور الخلفي ثابت، المحور الأمامي يتأرجح بمقدار ±7 درجات حجم الإطار: 12.00 – 20 PR20 |
| المقصورة (مغلقة) | شهادة FOPS/ROPS تكييف الهواء البارد بابين نظام الوصول إلى الاتصال ثلاثي النقاط مقعد تعليق منخفض التردد كاميرا احتياطية للمركبة مقصورة ذات مقعدين ممسحة الزجاج الأمامي خارج المقصورة القيادة إلى الأمام |
| الإطارات والأبعاد | الطول: 8,470 ±100 ملم العرض: 2,200 ±20 ملم الارتفاع: 2400 ±50 ملم الخلوص الأرضي: 250 ±20 ملم |
| النظام الهيدروليكي | توجيه هيدروليكي بالكامل صمام الشحن وصمام فرامل الخدمة: MICO بطاريات المراكم القابلة لتخزين الطاقة: Leemin خزان الزيت الهيدروليكي: 200 لتر |
| النظام الكهربائي | مرحل كهربائي وقاطع كهربائي: شنايدر المراقب المالي: فنلندا EPEC كشف اعطال المحرك التحكم في ناقل الحركة الكهربائي |
| خيارات | نظام الحماية من الحرائق التلقائي نظام تزييت مركزي أوتوماتيكي |


نوع المركبة: مركبة نقل ديزل غير مطروقة
سعة الخزان: 5000 لتر
المحرك: محرك ديزل Cummins منخفض الانبعاثات بشاحن توربيني، متوافق مع معايير الانبعاثات الصينية IV
تصميم الهيكل: هيكل مفصلي مركزي لتعزيز القدرة على المناورة والقدرة على الطرق الوعرة
نظام التوجيه: توجيه هيدروليكي كامل للتعامل السلس والسريع الاستجابة
نظام الكبح: مكابح رطبة متعددة الأقراص مغلقة بالكامل مع تصميم SAHR (الإصدار الزنبركي/الإصدار الهيدروليكي).
سلامة الكابينة: كابينة معتمدة من FOPS/ROPS للحماية من الأجسام المتساقطة ومخاطر الانقلاب
العرض والمراقبة: شاشة متعددة الوظائف لمراقبة المعدات في الوقت الحقيقي ودعم استكشاف الأخطاء وإصلاحها
نظام الإرفاق السريع: هيكل عالمي سريع التركيب يتيح تغيير الأدوات والمرفقات بسرعة
كفاءة استبدال الأداة: أقل من 5 دقائق لتبادل الأدوات
دعم متعدد الوظائف: متوافق مع مجموعة متنوعة من الملحقات الوظيفية لعمليات متنوعة
| الفئة | المواصفات |
|---|---|
| الأداء | حجم الخزان المقدر: 5,000 لتر سعة الحمولة: 4000 كجم الوزن التشغيلي: 12800 كجم معدل تدفق الزيت المعبأ إلى الخزان: 300 لتر/دقيقة معدل تدفق الزيت إلى الجهاز: 90 لتر/دقيقة بكرة خرطوم زيت تلسكوبي: 5 م |
| تحول الشعاع | زاوية التوجيه: ±40 درجة نصف قطر الدوران الداخلي: 4,214 ±100 ملم نصف قطر الدوران الخارجي: 6,749 ±100 ملم |
| السرعة (المستوى، حمولة كاملة) | الترس الأول: 5.0 ±1 كم/ساعة السرعة الثانية: 12 ±1 كم/ساعة السرعة الثالثة: 24 ±1 كم/ساعة |
| نظام الطاقة | المحرك: الكمون B5.9CS4 EFI، مبرد بالماء، المستوى 4 / المرحلة الأوروبية IV 129 كيلو واط عند 2200 دورة في الدقيقة، عزم الدوران: 760 كيلو نيوتن عند 1600 دورة في الدقيقة نظام العادم: جهاز تنقية وكاتم صوت حفاز DOC سعة إعادة تعبئة خزان الوقود: 140 لتر نظام الفرامل SAHR المحور الخلفي ثابت، المحور الأمامي يتأرجح بمقدار ±7 درجات حجم الإطار: 12.00 – 20 PR20 |
| المقصورة (مغلقة) | شهادة FOPS/ROPS تكييف الهواء البارد بابين نظام الوصول إلى الاتصال ثلاثي النقاط مقعد تعليق منخفض التردد كاميرا احتياطية للمركبة مقصورة ذات مقعدين ممسحة الزجاج الأمامي خارج المقصورة القيادة إلى الأمام |
| الإطارات والأبعاد | الطول: 8,470 ±100 ملم العرض: 2,200 ±20 ملم الارتفاع: 2400 ±50 ملم الخلوص الأرضي: 250 ±20 ملم |
| النظام الهيدروليكي | توجيه هيدروليكي بالكامل صمام الشحن وصمام فرامل الخدمة: MICO بطاريات المراكم القابلة لتخزين الطاقة: Leemin خزان الزيت الهيدروليكي: 200 لتر |
| النظام الكهربائي | مرحل كهربائي وقاطع كهربائي: شنايدر المراقب المالي: فنلندا EPEC كشف اعطال المحرك التحكم في ناقل الحركة الكهربائي |
| خيارات | نظام الحماية من الحرائق التلقائي نظام تزييت مركزي أوتوماتيكي |


تقع شركة FAMBITION في منطقة التنمية الاقتصادية Laixi في مدينة Qingdao، وهي شركة معروفة ومتخصصة في تصنيع معدات التعدين غير المسارية.
حقوق الطبع والنشر © 2024 QINGDAO FAMBITION HEAVY MACHINERY CO.,LTD. جميع الحقوق محفوظة. | Sitemap | سياسة الخصوصية