| توافر الحالة: | |
|---|---|
| الكمية: | |
FUD03
FAMBITION
خزان بسعة كبيرة 3,500 لتر
سعة حمولة استثنائية لتحسين كفاءة الرحلة الواحدة بشكل ملحوظ.
مكونات دولية متميزة
تم تصميمه باستخدام أجزاء ذات علامات تجارية مشهورة عالميًا لضمان الموثوقية والمتانة المتميزة.
هيكل مفصلي مركزي + نظام توجيه هيدروليكي كامل
قدرة فائقة على المناورة وأداء ممتاز على الطرق الوعرة في البيئات المعقدة تحت الأرض.
نظام مكابح السلامة المتقدم
مكابح رطبة متعددة الأقراص مغلقة بالكامل مع تقنية SAHR (الإصدار الهيدروليكي التطبيقي الزنبركي) الآمنة من العطل لتحقيق أقصى قدر من موثوقية الكبح.
مجموعة نقل حركة قوية وصديقة للبيئة
محرك Cummins ذو الشاحن التوربيني منخفض الانبعاثات يفي بمعايير الانبعاثات الصينية للمرحلة الرابعة - أداء قوي مع تأثير منخفض على البيئة.
مقصورة معتمدة من FOPS/ROPS
هيكل الحماية عالي القوة يضمن سلامة المشغل الشاملة.
شاشة ذكية متعددة الوظائف
مراقبة المعدات في الوقت الحقيقي والدعم التشخيصي لاستكشاف الأخطاء وإصلاحها وصيانتها بشكل أسرع.
نظام هيكل سريع التركيب عالمي
مركبة واحدة، وظائف متعددة - تدعم بسلاسة مجموعة واسعة من الملحقات للنقل والتحميل والتنظيف والمزيد.
تغيير سريع للأداة لمدة 5 دقائق
تتيح آلية التغيير السريع الرائدة في الصناعة إمكانية تبديل المرفقات خلال 5 دقائق فقط، مما يزيد من وقت التشغيل والإنتاجية إلى أقصى حد.
| الفئة | المواصفات |
|---|---|
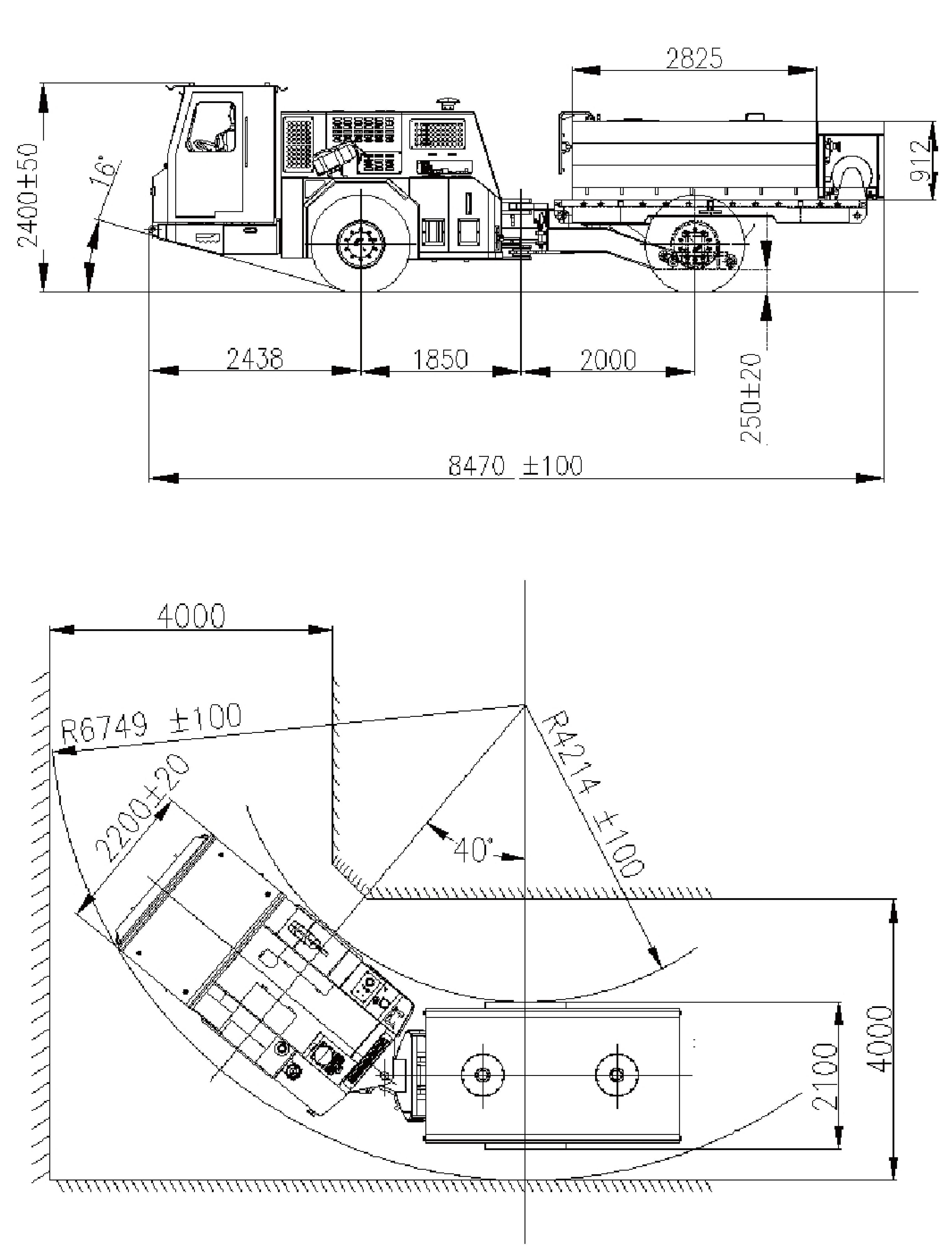
| الأداء | حجم الخزان المقدر: 3500 لتر سعة الحمولة: 3000 كجم الوزن التشغيلي: 12800 كجم معدل تدفق الزيت المعبأ إلى الخزان: 300 لتر/دقيقة معدل تدفق الزيت إلى الجهاز: 90 لتر/دقيقة بكرة خرطوم زيت تلسكوبي: 5 م |
| تحول الشعاع | زاوية التوجيه: ±40 درجة نصف قطر الدوران الداخلي: 4,214 ±100 ملم نصف قطر الدوران الخارجي: 6,749 ±100 ملم |
| السرعة (المستوى، التحميل الكامل) | الترس الأول: 5.0 ±1 كم/ساعة السرعة الثانية: 12 ±1 كم/ساعة السرعة الثالثة: 24 ±1 كم/ساعة |
| نظام الطاقة | المحرك: الكمون B5.9CS4 EFI، مبرد بالماء، المستوى 4 / المرحلة الأوروبية IV 129 كيلو واط عند 2200 دورة في الدقيقة، عزم الدوران: 760 كيلو نيوتن عند 1600 دورة في الدقيقة نظام العادم: جهاز تنقية وكاتم صوت حفاز DOC سعة إعادة تعبئة خزان الوقود: 140 لتر التحكم في ناقل الحركة الكهربائي صحر المحور الخلفي ثابت، المحور الأمامي يتأرجح بمقدار ±7 درجات حجم الإطار: 12.00 – 20 PR20 |
| المقصورة | شهادة FOPS/ROPS تكييف الهواء البارد بابين نظام الوصول إلى الاتصال ثلاثي النقاط مقعد تعليق منخفض التردد كاميرا احتياطية للمركبة مقصورة ذات مقعدين القيادة إلى الأمام ممسحة الزجاج الأمامي خارج المقصورة |
| البعد | الطول: 8,470 ±100 ملم العرض: 2,200 ±20 ملم الارتفاع: 2400 ±50 ملم الخلوص الأرضي: 250 ±20 ملم |
| النظام الهيدروليكي | توجيه هيدروليكي بالكامل صمام الشحن وصمام فرامل الخدمة: MICO بطاريات المراكم القابلة لتخزين الطاقة: Leemin خزان الزيت الهيدروليكي: 130 لترًا (مع فلتر عودة زيت Leemin) |
| النظام الكهربائي | مرحل كهربائي وقاطع كهربائي: شنايدر المراقب المالي: فنلندا EPEC كشف اعطال المحرك |
| خيارات | نظام الحماية من الحرائق التلقائي نظام التشحيم المركزي التلقائي التحكم الكهربائي في الجر. خزان زيت سعة 5 طن |


خزان بسعة كبيرة 3,500 لتر
سعة حمولة استثنائية لتحسين كفاءة الرحلة الواحدة بشكل ملحوظ.
مكونات دولية متميزة
تم تصميمه باستخدام أجزاء ذات علامات تجارية مشهورة عالميًا لضمان الموثوقية والمتانة المتميزة.
هيكل مفصلي مركزي + نظام توجيه هيدروليكي كامل
قدرة فائقة على المناورة وأداء ممتاز على الطرق الوعرة في البيئات المعقدة تحت الأرض.
نظام مكابح السلامة المتقدم
مكابح رطبة متعددة الأقراص مغلقة بالكامل مع تقنية SAHR (الإصدار الهيدروليكي التطبيقي الزنبركي) الآمنة من العطل لتحقيق أقصى قدر من موثوقية الكبح.
مجموعة نقل حركة قوية وصديقة للبيئة
محرك Cummins ذو الشاحن التوربيني منخفض الانبعاثات يفي بمعايير الانبعاثات الصينية للمرحلة الرابعة - أداء قوي مع تأثير منخفض على البيئة.
مقصورة معتمدة من FOPS/ROPS
هيكل الحماية عالي القوة يضمن سلامة المشغل الشاملة.
شاشة ذكية متعددة الوظائف
مراقبة المعدات في الوقت الحقيقي والدعم التشخيصي لاستكشاف الأخطاء وإصلاحها وصيانتها بشكل أسرع.
نظام هيكل سريع التركيب عالمي
مركبة واحدة، وظائف متعددة - تدعم بسلاسة مجموعة واسعة من الملحقات للنقل والتحميل والتنظيف والمزيد.
تغيير سريع للأداة لمدة 5 دقائق
تتيح آلية التغيير السريع الرائدة في الصناعة إمكانية تبديل المرفقات خلال 5 دقائق فقط، مما يزيد من وقت التشغيل والإنتاجية إلى أقصى حد.
| الفئة | المواصفات |
|---|---|
| الأداء | حجم الخزان المقدر: 3500 لتر سعة الحمولة: 3000 كجم الوزن التشغيلي: 12800 كجم معدل تدفق الزيت المعبأ إلى الخزان: 300 لتر/دقيقة معدل تدفق الزيت إلى الجهاز: 90 لتر/دقيقة بكرة خرطوم زيت تلسكوبي: 5 م |
| تحول الشعاع | زاوية التوجيه: ±40 درجة نصف قطر الدوران الداخلي: 4,214 ±100 ملم نصف قطر الدوران الخارجي: 6,749 ±100 ملم |
| السرعة (المستوى، التحميل الكامل) | الترس الأول: 5.0 ±1 كم/ساعة السرعة الثانية: 12 ±1 كم/ساعة السرعة الثالثة: 24 ±1 كم/ساعة |
| نظام الطاقة | المحرك: الكمون B5.9CS4 EFI، مبرد بالماء، المستوى 4 / المرحلة الأوروبية IV 129 كيلو واط عند 2200 دورة في الدقيقة، عزم الدوران: 760 كيلو نيوتن عند 1600 دورة في الدقيقة نظام العادم: جهاز تنقية وكاتم صوت حفاز DOC سعة إعادة تعبئة خزان الوقود: 140 لتر التحكم في ناقل الحركة الكهربائي صحر المحور الخلفي ثابت، المحور الأمامي يتأرجح بمقدار ±7 درجات حجم الإطار: 12.00 – 20 PR20 |
| المقصورة | شهادة FOPS/ROPS تكييف الهواء البارد بابين نظام الوصول إلى الاتصال ثلاثي النقاط مقعد تعليق منخفض التردد كاميرا احتياطية للمركبة مقصورة ذات مقعدين القيادة إلى الأمام ممسحة الزجاج الأمامي خارج المقصورة |
| البعد | الطول: 8,470 ±100 ملم العرض: 2,200 ±20 ملم الارتفاع: 2400 ±50 ملم الخلوص الأرضي: 250 ±20 ملم |
| النظام الهيدروليكي | توجيه هيدروليكي بالكامل صمام الشحن وصمام فرامل الخدمة: MICO بطاريات المراكم القابلة لتخزين الطاقة: Leemin خزان الزيت الهيدروليكي: 130 لترًا (مع فلتر عودة زيت Leemin) |
| النظام الكهربائي | مرحل كهربائي وقاطع كهربائي: شنايدر المراقب المالي: فنلندا EPEC كشف اعطال المحرك |
| خيارات | نظام الحماية من الحرائق التلقائي نظام التشحيم المركزي التلقائي التحكم الكهربائي في الجر. خزان زيت سعة 5 طن |


تقع شركة FAMBITION في منطقة التنمية الاقتصادية Laixi في مدينة Qingdao، وهي شركة معروفة ومتخصصة في تصنيع معدات التعدين غير المسارية.
حقوق الطبع والنشر © 2024 QINGDAO FAMBITION HEAVY MACHINERY CO.,LTD. جميع الحقوق محفوظة. | Sitemap | سياسة الخصوصية