| توافر الحالة: | |
|---|---|
| الكمية: | |
إن FUE05 عبارة عن مركبة نقل متفجرات بدون مسارات بسعة حمولة قصوى تبلغ 5 أطنان. تعتمد السيارة على مكونات عالمية متميزة، وشاسيه مفصلي مركزي ونظام توجيه هيدروليكي كامل. مجهزة بالكامل بفرامل رطبة متعددة الأقراص تستخدم SAHR، يتم تشغيل السيارة بواسطة محرك Cummins منخفض الانبعاثات المزود بشاحن توربيني والمتوافق مع معايير الانبعاثات الصينية IV. تشتمل المقصورة المعتمدة على هيكل الحماية من الأجسام المتساقطة (FOPS)/هيكل الحماية من الانقلاب (ROPS) على شاشة عرض متعددة الوظائف لمراقبة المعدات في الوقت الفعلي والمساعدة في استكشاف الأخطاء وإصلاحها.
يتيح نظام الهيكل العالمي سريع التثبيت إجراء تغييرات سريعة، ويدعم الملحقات الوظيفية المتعددة لعمليات متنوعة. تسمح آلية التغيير السريع باستبدال الأداة خلال خمس دقائق.
| الفئة | التفاصيل |
|---|---|
| الأداء | سعة الحمولة: 5000 كجم أبعاد المقصورة: 3,200 × 5,500 × 1,800 ملم عرض باب المقصورة: 1,700 ملم رقم باب المقصورة: 5 قطع قوة الجر القصوى: 110 كيلو نيوتن |
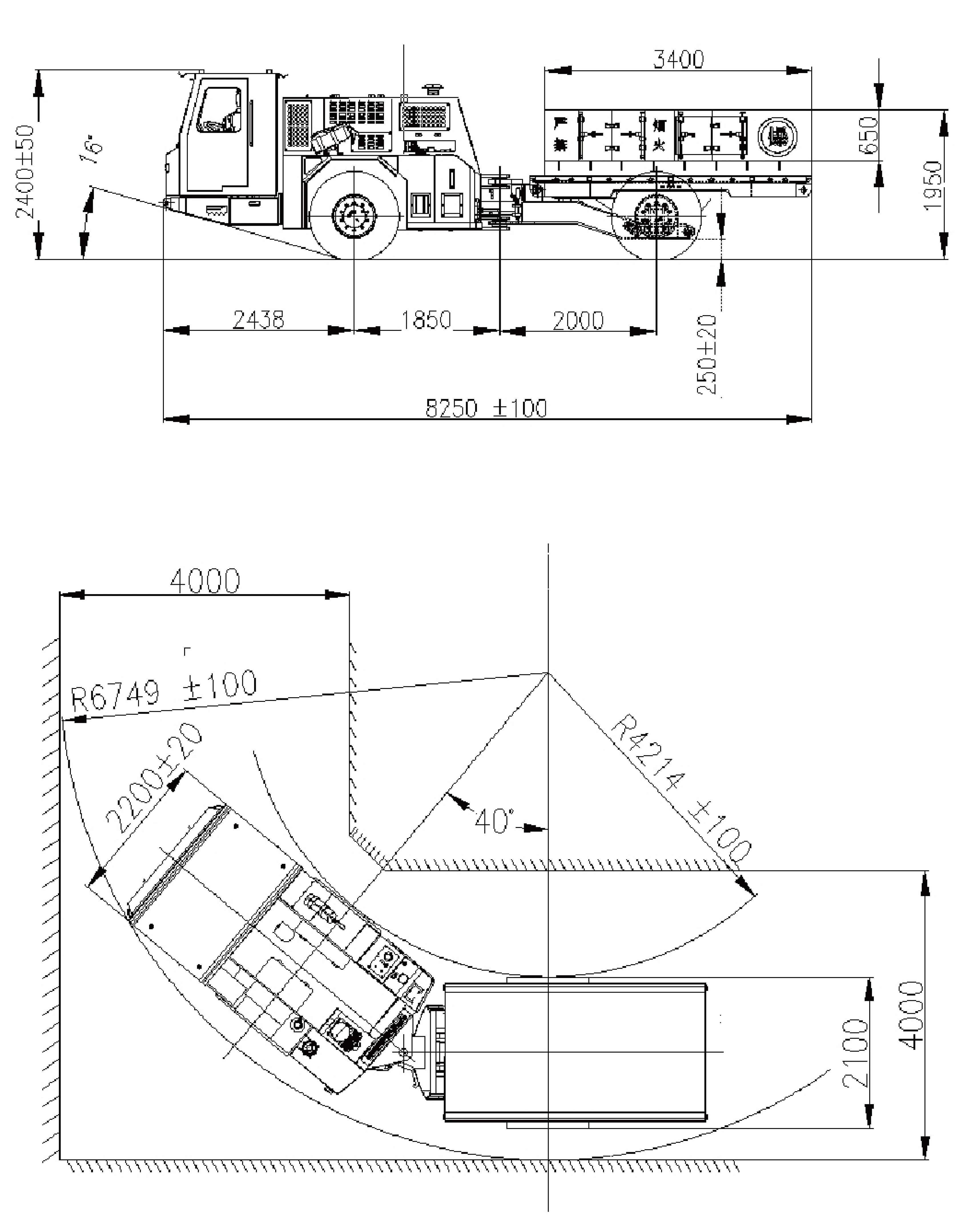
| البعد | الطول: 8,250 ± 100 م العرض: 2,200 ± 20 ملم الارتفاع: 2400 ± 50 ملم الخلوص الأرضي: 250 ± 20 ملم زاوية التوجيه: ±40 درجة نصف قطر الدوران الداخلي: 4,214 ± 100 ملم نصف قطر الدوران الخارجي: 6,749 ± 100 ملم |
| السرعة (المستوى، التحميل الكامل) | الترس الأول: 5 ± 1 كم/ السرعة الثانية: 12 ± 1 كم/ساعة السرعة الثالثة: 24 ± 1 كم/ساعة |
| نظام الطاقة | المحرك: الكمون B5.9CS 4EFI، مبرد بالماء، المستوى 4، المرحلة الأوروبية IV 129 كيلووات عند 2200 دورة في الدقيقة، 760 نيوتن متر عند 1600 دورة في الدقيقة |
| نظام العادم | DOC جهاز تنقية وكاتم صوت حفاز |
| سعة خزان الوقود | 140 لتر |
| النظام الهيدروليكي | توجيه هيدروليكي بالكامل صمام الشحن وصمام فرامل الخدمة: MICO بطاريات المراكم القابلة لتخزين الطاقة: Leemin (فلتر عودة الزيت) خزان الزيت الهيدروليكي: 200 لتر |
| النظام الكهربائي | التتابع الكهربائي وقاطع الدائرة الكهربائية: شنايده rController: فنلندا EPEC كشف اعطال المحرك |
| المقصورة (مغلقة) | شهادة FOPS/ROPS تكييف الهواء البارد بابين للمقصورة القيادة إلى الأمام نظام الوصول إلى الاتصال ثلاثي النقاط للوصول بسرعة إلى المقصورة مقعد تعليق منخفض التردد كاميرا احتياطية للمركبة مقصورة ذات مقعدين ممسحة الزجاج الأمامي خارج المقصورة |
| السلامة | منارة وامضة الحماية المحمولة من الحرائق 1 × 6 كجم نظام إنذار الدخان |
| خيارات | نظام الحماية من الحرائق التلقائي mالتشحيم المركزي التلقائي |


إن FUE05 عبارة عن مركبة نقل متفجرات بدون مسارات بسعة حمولة قصوى تبلغ 5 أطنان. تعتمد السيارة على مكونات عالمية متميزة، وشاسيه مفصلي مركزي ونظام توجيه هيدروليكي كامل. مجهزة بالكامل بفرامل رطبة متعددة الأقراص تستخدم SAHR، يتم تشغيل السيارة بواسطة محرك Cummins منخفض الانبعاثات المزود بشاحن توربيني والمتوافق مع معايير الانبعاثات الصينية IV. تشتمل المقصورة المعتمدة على هيكل الحماية من الأجسام المتساقطة (FOPS)/هيكل الحماية من الانقلاب (ROPS) على شاشة عرض متعددة الوظائف لمراقبة المعدات في الوقت الفعلي والمساعدة في استكشاف الأخطاء وإصلاحها.
يتيح نظام الهيكل العالمي سريع التثبيت إجراء تغييرات سريعة، ويدعم الملحقات الوظيفية المتعددة لعمليات متنوعة. تسمح آلية التغيير السريع باستبدال الأداة خلال خمس دقائق.
| الفئة | التفاصيل |
|---|---|
| الأداء | سعة الحمولة: 5000 كجم أبعاد المقصورة: 3,200 × 5,500 × 1,800 ملم عرض باب المقصورة: 1,700 ملم رقم باب المقصورة: 5 قطع قوة الجر القصوى: 110 كيلو نيوتن |
| البعد | الطول: 8,250 ± 100 م العرض: 2,200 ± 20 ملم الارتفاع: 2400 ± 50 ملم الخلوص الأرضي: 250 ± 20 ملم زاوية التوجيه: ±40 درجة نصف قطر الدوران الداخلي: 4,214 ± 100 ملم نصف قطر الدوران الخارجي: 6,749 ± 100 ملم |
| السرعة (المستوى، التحميل الكامل) | الترس الأول: 5 ± 1 كم/ السرعة الثانية: 12 ± 1 كم/ساعة السرعة الثالثة: 24 ± 1 كم/ساعة |
| نظام الطاقة | المحرك: الكمون B5.9CS 4EFI، مبرد بالماء، المستوى 4، المرحلة الأوروبية IV 129 كيلووات عند 2200 دورة في الدقيقة، 760 نيوتن متر عند 1600 دورة في الدقيقة |
| نظام العادم | DOC جهاز تنقية وكاتم صوت حفاز |
| سعة خزان الوقود | 140 لتر |
| النظام الهيدروليكي | توجيه هيدروليكي بالكامل صمام الشحن وصمام فرامل الخدمة: MICO بطاريات المراكم القابلة لتخزين الطاقة: Leemin (فلتر عودة الزيت) خزان الزيت الهيدروليكي: 200 لتر |
| النظام الكهربائي | التتابع الكهربائي وقاطع الدائرة الكهربائية: شنايده rController: فنلندا EPEC كشف اعطال المحرك |
| المقصورة (مغلقة) | شهادة FOPS/ROPS تكييف الهواء البارد بابين للمقصورة القيادة إلى الأمام نظام الوصول إلى الاتصال ثلاثي النقاط للوصول بسرعة إلى المقصورة مقعد تعليق منخفض التردد كاميرا احتياطية للمركبة مقصورة ذات مقعدين ممسحة الزجاج الأمامي خارج المقصورة |
| السلامة | منارة وامضة الحماية المحمولة من الحرائق 1 × 6 كجم نظام إنذار الدخان |
| خيارات | نظام الحماية من الحرائق التلقائي mالتشحيم المركزي التلقائي |


تقع شركة FAMBITION في منطقة التنمية الاقتصادية Laixi في مدينة Qingdao، وهي شركة معروفة ومتخصصة في تصنيع معدات التعدين غير المسارية.
حقوق الطبع والنشر © 2024 QINGDAO FAMBITION HEAVY MACHINERY CO.,LTD. جميع الحقوق محفوظة. | Sitemap | سياسة الخصوصية